|
◎概述
主要用途FZW32-12/T630-20型户外高压隔离真空负荷开关是新一代高压电器产品。经严格的型式试验和长期试运行考核。各项技术性能指标全部达到GB-3804IEC标准。该产品主要为城网农网建设的改造而设计,适用额定电压12KV。三相交流50HZ的供电网络中,该产品底架采用不锈钢材料或热镀锌外加防紫外线保护涂料的碳钢,确保了机体在户外环境下的正常运行,零部件采用不锈钢材料,确保了负荷开关的耐用性,稳定性和防水 防盐雾等性能该产品具有体积小 重量轻 外型美观 操作简便 高参数,开断能力大,安全可靠,电寿命长,可频繁操作。少维护 断口明显等级具显著的特点。操作方式采用单杆式手动操作,也可采用电动,远控操作。
◎主要技术参数
负荷开关主要技术参数
|
序号 |
名称 |
单位 |
参数 |
1 |
额定电压 |
KV |
12 |
2 |
额定频率 |
HZ |
50 |
3 |
额定电流 |
A |
630 |
4 |
额定有功负载开断电流 |
A |
630 |
5 |
额定才环开断电流 |
A |
630 |
6 |
5%额定有功负载开断电流 |
A |
31.5 |
7 |
额定电缆充电开断电流 |
A |
10 |
|
8 |
1min工频耐受电压:真空 |
|
|
断口相关 相对地/隔离断 |
KV |
42/48 |
|
9 |
雷电冲击耐受电压;相向相对 |
|
|
地/隔离断口 |
KV |
75/85 |
10 |
额定短时耐受电流(热稳定) |
KA |
20 |
11 |
额定短路持续时间 |
S |
4 |
12 |
额定峰值受电流(动稳定) |
KA |
50 |
13 |
额定短路关合开关 |
KA |
50 |
14 |
机械寿命 |
次 |
10000 |
15 |
真空灭弧室触头允许磨损厚度 |
mm |
0.5 |
16 |
手动操作力矩 |
Nm |
≤200 |
17 |
额定空载变压器开断容量 |
KVA |
1600 |
18 |
额定开断电容器组电流 |
A |
100 |
|
|
| |
二.负荷开关真空灭弧室装置配调整技术参数
序号 |
名称 |
单位 |
参数 |
1 |
触头开距 |
mn |
5=1 |
2 |
平均分闸速度 |
m/s |
1.1=0.2 |
3 |
三相分闸不同期 |
ms |
<5 |
4 |
三相合闸不同期 |
ms |
<5 |
5 |
带电体之间及相对地距离 |
mn |
>200 |
6 |
辅助同睡电阻 |
μΩ |
>400 |
三.隔离刀装置配调整技术参数
序号 |
名称 |
单位 |
参数 |
1 |
隔离刀正压力 |
N |
300=50/ |
2 |
触刀后分离点到静触头距离 |
mm |
>180mm |
3 |
进出线端 |
μΩ |
≤150 |
4
|
机械寿命
|
次
|
1000 |
|
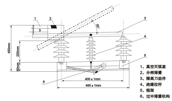
| ◎外形安装尺寸
|
 |